Пропонуємо до продажу 2кімнатну квартиру у Покровському районі зі зручним розташуванням, з виходом як на "Гірник", на "Ставки" та район "Світанку". Охайний будинок, доглянуте подвір'я, працююче ОСББ, відповідальні сусіди.
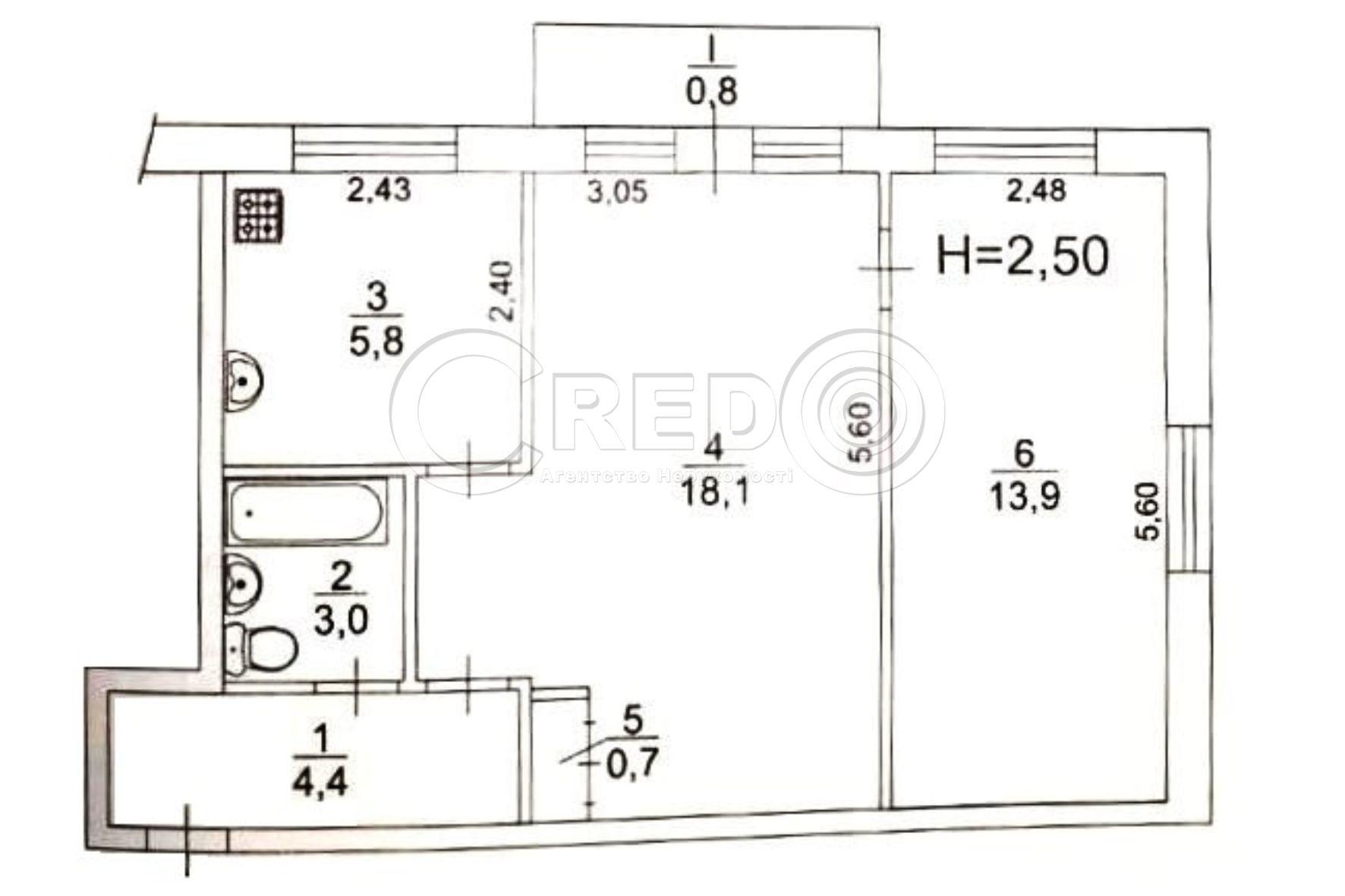
Про об'єкт: - 2кімнатна квартира - 3 поверх 5типоверхового будинку. - загальна площа 46,7 м.кв. - житлова площа 32 м.кв.
Планування об'єкту: - утеплена, кутова. - загальна кімната прохідна. - санвузол суміжний.
Особливості квартири: - вікна та балконний блок замінені на металопластикові. - зроблено повний ремонт санвузла, встановлено бойлер, облаштовано місце для пральної машини. - відремонтована кухня. - міжкімнатні двері сучасні "канадка". - оновлено електрику, встановлено запобіжники, лічильник "день-ніч". - біля будинку маємо погріб.
Локація: - розташування будинку на затишній вулиці Шкапенка навпроти ліцею "Колія". - поряд дитяча спортивна школа №6 з відкритим басейном " Дельфін", Гірничий коледж, Покровський районий суд, гімназія №36, школа № 62. - в шаговому доступі супермаркети "Делві", "Маркетопт" та інші. - вихід до транспортних розв'язок вулиць Кропивницького, Зінчевського(ХХ Партз'їзду), Ф.Караманіц(Ватутіна). Квартира вільна та готова до заселення!
Ціна на сьогодні 12 000$. Розглянемо ваші пропозиції. З будь-яких питань за цією пропозицією звертайтесь за номером телефону 067 982 17 19. З повагою, команда CREDO!