Пропонуємо до продажу, а також розглянемо обмін на квартиру будинок у Довгинцівському районі, селище Залізничне, вул.Кишинівська.
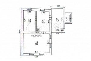
Пр об'єкт: - шлаколитий будинок. - загальна площа 49,3 м.кв. - житлова площа 28.0 м.кв. - кімнати 19,2 + 10 + 8,8 м.кв. - висота стелі 2,70 м.
Комунікації та особливості об'єкту: - будинок без сучасного ремонту. - кімнати у житловому стані. - кухня та санвузол потребують реконструкції. - в будинок заведено водопровід та газ. - опалення - газовий котел. - збережена дров'яна піч. - літня кухня також газифікована та з водою. - каналізація - септик. - на території міцні господарчі споруди. - також є гарний, сухий погріб. - земельна ділянка 6 сот. - розташування - друга лінія вулиці Кишинівська з власним заїздом.
Локація: - селище "Залізничне" розташовано в чистій, екологічній зоні Довгинцівського району. - не далеко від зупинки громадського транспорту "Будка". - поряд не велика продуктова крамниця. - в шаговому доступі Загальноосвітня школа № 89.
Пропозиції обміну на квартиру розглянемо різні, у межах нашої продажної ціни. На сьогодні ціна 12 000$
За будь-якими питаннями за цією або схожими пропозиціями звертайтесь за номером телефону 067 982 17 19. З повагою, команда Credo!
Продаж 1/2 будинку котеджного типу. Довгинцівський район. Пропонуємо до продажу охайне домоволодіння по вулиці Янки Купали у Довгинцівському районі. Міцний цегляний будинок. Акуратна земельна ділянка. Гарні сусіди - великий плюс!…
Продаж 1/2 будинку котеджного типу. Довгинцівський район. Пропонуємо до продажу охайне домоволодіння по вулиці Янки Купали у Довгинцівському районі. Міцний цегляний будинок. Акуратна земельна ділянка. Гарні сусіди - великий плюс!…