Вхід на сайт

Ел. пошта:
Пароль:

Реєстрація на сайті

Призвіще: Область:
Ім'я: Населений пункт:
    По батькові: Номер телефону:
    Ел. пошта: Компанія:
      Пароль: Посада:
      Повторіть пароль: Рік початку роботи:
      Фото:
      З правилами розміщення об'єктів погоджуюсь

      Забули пароль?

      Вкажіть ел. пошту — ми надішлемо Вам новий пароль для входу
      Ел. пошта:

      Проблема на сайті

      Закрити
      Ваш e-mail:
      (необов'язково)
      Розкажіть нам, що сталось

      ул. Кропивницкого — Продається квартира

      (г. Кривой Рог, Жовтневый район)

      46000 $

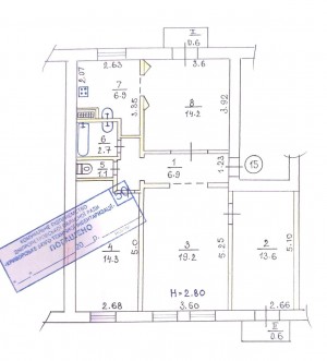
      Загальна площа: 80 кв.м

      Жила площа: 61 кв.м

      Площа кухні: 7 кв.м

      Кімнат: 4

      Поверх: 3

      К-ть поверхів: 3

      Пропонуємо до продажу 4кімнатну переплановану "сталінку"
      в районі "Гірник", вулиця Кропивницького,54.
      В процесі реконструкції маємо об'єднану з кухнею столову
      зону з балконом. Дві окремі спальні, простора вітальня.
      Додатковий плюс до комфорту додає наявність автономного
      газового опалення. Завжди актуально!

      Про об'єкт:
      - розташування 3 поверх 3поверхового будинку.
      - відремонтований під'їзд на 6 квартир.
      - загальна площа 80.1 м.кв.
      - житлова площа 61.3 м.кв.

      Планування об'єкту:
      - узаконене перепланування.
      - вітальня 19.2 м.кв.
      - спальні кімнати 14.3 + 13.6 м.кв.
      - столова та кухня 14.2 + 6.9 м.кв.
      - високі стелі 2.80 м.
      - маємо 2 балкони.
      - квартира двостороння.

      Особливості квартири:
      - опалення та підігрів води виконує газовий котел "Immergas"
      - лічильники вода, газ, електрика-двозонний.
      - квартира мебльована кухонними меблями.
      - маємо великі шафи-купе.
      - ремонтні роботи виконувались з використанням
      дороговартісних матеріалів та технік.
      Якість та довговічність - головні характеристики оздоблення!

      Локація:
      - будинок знаходиться у чистому, тихому районі міста.
      - вихід до головних вулиць М.Зінчевського (ХХ Партз'їзду)
      та вул.Ф.Караманіц (Ватутіна) з великим вибором
      громадського транспорту.
      - у шаговому доступі сквери, парк Шахтарський,
      відпочинкові зони з пляжами.
      - локаційно поряд розташовані гімназії № 57 та №36,
      загальноосвітня школа № 62, дитячий садочок №247,
      Гірничий коледж, спортивні школи № 6 (Дельфін) та
      № 4 (СК Молодість), Жовтневий районний суд.
      - поряд з будинком термінал Нової Пошти №3,
      супермаркети МаркетОпт, ТРАШ та Rozetka,
      відділення банку, кафе, перукарні, нотаріальні контори.

      Додатково можемо запропонувати гараж поряд з будинком.

      Наша ціна продажу 46 000 $
      Розглядаємо продаж через сертифікати.
      З будь-яких питань за цією або схожими пропозиціями звертайтесь за номером телефону, де вам відповість наш ріелтор Катерина 067 982 17 19.

      З повагою, команда Credo!

      Надіслати скаргу

      Закрити
      Поскаржитися на об'єкт «ул. Кропивницкого (г. Кривой Рог, Жовтневый район)»
      Ваш коментар:(Необов'язково)
      Ваша скарга буде надіслана ріелтору, що розмістив об'єкт, а також адміністрації сайту АФНУ.
      Ваше ім'я:
      (Обов'язково)
      Ваш e-mail для відповіді:
      (Обов'язково)

      Вам также могут подойти

      мкрн. Сонячний (г. Кривой Рог, Саксаганский район) - Продається квартира, 49000 $ - АФНУ

      Оновлено: 30 грудня 2025

      Розміщено: 24 жовтня 2023

      Продається квартира

      5 кімн., площа 115/-/-, поверх 4/17

      г. Кривой Рог, мкрн. Сонячний

      49000 $

      Літвинова Ірина Вікторівна

      Продаж 5тикімнатної квартири (3 + 2) "Сонячний"

      Маємо цікаву пропозицію з продажу комфортного житла для великої родини!
      Мікрорайон "Сонячний". 4 поверх 17поверхового будинку. 5тикімнатна квартира, створена з двох окремих квартир,…

      Детальніше

      Коментарі