Вхід на сайт

Ел. пошта:
Пароль:

Реєстрація на сайті

Призвіще: Область:
Ім'я: Населений пункт:
    По батькові: Номер телефону:
    Ел. пошта: Компанія:
      Пароль: Посада:
      Повторіть пароль: Рік початку роботи:
      Фото:
      З правилами розміщення об'єктів погоджуюсь

      Забули пароль?

      Вкажіть ел. пошту — ми надішлемо Вам новий пароль для входу
      Ел. пошта:

      Проблема на сайті

      Закрити
      Ваш e-mail:
      (необов'язково)
      Розкажіть нам, що сталось

      Соборності — Продається квартира

      (г. Кривой Рог, Долгинцевский район)

      11000 $

      Загальна площа: 48 кв.м

      Жила площа: 33 кв.м

      Площа кухні: 5 кв.м

      Кімнат: 3

      Поверх: 4

      К-ть поверхів: 5

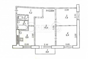
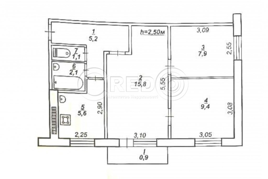
      Продаж 3-х кім. квартири вул. Соборності

      Про об’єкт:
      - Квартира розташована на 4/5-ти поверхового будинку.
      - Загальна площа 48 кв.м.
      - Житлова 33,1кв.м.
      - Кухня 5,6кв.м.
      - Висота Н - 2.50м.

      Планування об’єкту:
      Квартира кутова, не прохідна, один балкон.

      Особливості квартири:
      Повністю поміняні вікна, замінені труби м/пл., бойлер, встановлені лічильники на світло, газ та воду.

      Об'єкти поруч:
      - Зручне місце розташування
      - Великий жилий масив
      - Школа, Дитячий садок
      - Поряд магазини, аптеки, зупинка, та інше.

      Ціна 11 000у.о.

      За будь-якими питаннями за цією або схожими пропозиціями звертайтесь за номером телефону 068 862 43 57.
      З повагою, команда Credo!

      Надіслати скаргу

      Закрити
      Поскаржитися на об'єкт «Соборності (г. Кривой Рог, Долгинцевский район)»
      Ваш коментар:(Необов'язково)
      Ваша скарга буде надіслана ріелтору, що розмістив об'єкт, а також адміністрації сайту АФНУ.
      Ваше ім'я:
      (Обов'язково)
      Ваш e-mail для відповіді:
      (Обов'язково)

      Вам также могут подойти

      ул. Симонова (г. Кривой Рог, Долгинцевский район) - Продається квартира, 9500 $ - АФНУ

      Оновлено: 23 грудня 2025

      Розміщено: 17 червня 2025

      Продається квартира

      1 кімн., площа 38/16/9, поверх 7/9

      г. Кривой Рог, ул. Симонова

      9500 $

      Літвинова Ірина Вікторівна

      Продаж 1-но кімнатної квартири, вул. 21-Ї бригади Національної гвардії (Симонова), Східний-1.

      Про об’єкт:

      - Квартира розташована на 7/9 поверхового будинку, двостороння.
      - Загальна площа 38,45кв.м.,
      - Житлова 16.6кв.м.,
      - Кухня…

      Детальніше

      ул. Ильичевская (г. Кривой Рог, Саксаганский район) - Продається квартира, 12000 $ - АФНУ

      Оновлено: 28 листопада 2025

      Розміщено: 28 травня 2025

      Продається квартира

      2 кімн., площа 50/28/5, поверх 2/2

      г. Кривой Рог, ул. Ильичевская

      12000 $

      Літвинова Ірина Вікторівна

      Продаж 2-х кімнатної квартири, Саксаганський район, вул.Гетьманська, Дзержинка.

      Про об’єкт:

      - Квартира розташована на 2/2 поверхового будинку.
      - Загальна площа 50,3кв.м.,
      - Житлова 28.2кв.м., всі кімнати окремі,
      - Кухня 5кв.м.,…

      Детальніше

      ул. Симонова (г. Кривой Рог, Долгинцевский район) - Продається квартира, 9500 $ - АФНУ

      Оновлено: 23 грудня 2025

      Розміщено: 17 червня 2025

      Продається квартира

      1 кімн., площа 38/16/9, поверх 7/9

      г. Кривой Рог, ул. Симонова

      9500 $

      Літвинова Ірина Вікторівна

      Продаж 1-но кімнатної квартири, вул. 21-Ї бригади Національної гвардії (Симонова), Східний-1.

      Про об’єкт:

      - Квартира розташована на 7/9 поверхового будинку, двостороння.
      - Загальна площа 38,45кв.м.,
      - Житлова 16.6кв.м.,
      - Кухня…

      Детальніше

      Коментарі