Вхід на сайт

Ел. пошта:
Пароль:

Реєстрація на сайті

Призвіще: Область:
Ім'я: Населений пункт:
    По батькові: Номер телефону:
    Ел. пошта: Компанія:
      Пароль: Посада:
      Повторіть пароль: Рік початку роботи:
      Фото:
      З правилами розміщення об'єктів погоджуюсь

      Забули пароль?

      Вкажіть ел. пошту — ми надішлемо Вам новий пароль для входу
      Ел. пошта:

      Проблема на сайті

      Закрити
      Ваш e-mail:
      (необов'язково)
      Розкажіть нам, що сталось

      ул. Електрозаводська — Продається гараж

      (г. Кривой Рог, Жовтневый район)

      20000 $

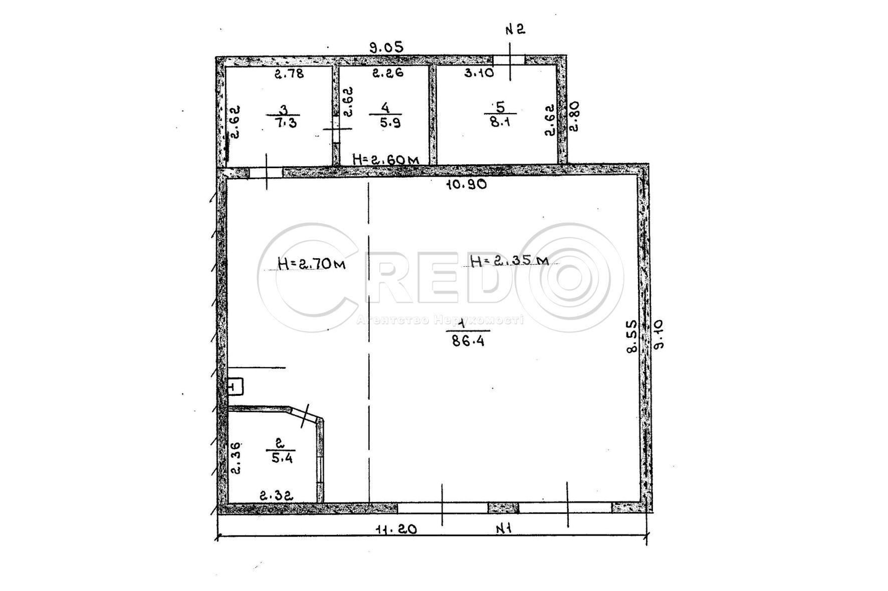
      Загальна площа: 113 кв.м

      К-ть поверхів: 1

      Продаж автомайстерні.
      Будівля розташована в гаражному будівельному кооперативі «Зірковий» на Зарічному по вул. Електрозоводська.
      Також ідеально підійде під автомийку.

      Планування об’єкту:
      - Загальна площа 113.1кв.м.
      - Висота стелі 2,70м

      Комунікації:
      - Електроенергія 220V, 5кВт є можливість збільшити
      - Центральне водопостачання

      Продаж – 20 000$ договірна

      За будь-якими питаннями за цією або схожими пропозиціями звертайтесь за номером телефону, де вам відповість наш ріелтор Надія 098 985 09 08.

      З повагою, команда CREDO!

      Надіслати скаргу

      Закрити
      Поскаржитися на об'єкт «ул. Електрозаводська (г. Кривой Рог, Жовтневый район)»
      Ваш коментар:(Необов'язково)
      Ваша скарга буде надіслана ріелтору, що розмістив об'єкт, а також адміністрації сайту АФНУ.
      Ваше ім'я:
      (Обов'язково)
      Ваш e-mail для відповіді:
      (Обов'язково)

      Коментарі