Вхід на сайт

Ел. пошта:
Пароль:

Реєстрація на сайті

Призвіще: Область:
Ім'я: Населений пункт:
    По батькові: Номер телефону:
    Ел. пошта: Компанія:
      Пароль: Посада:
      Повторіть пароль: Рік початку роботи:
      Фото:
      З правилами розміщення об'єктів погоджуюсь

      Забули пароль?

      Вкажіть ел. пошту — ми надішлемо Вам новий пароль для входу
      Ел. пошта:

      Проблема на сайті

      Закрити
      Ваш e-mail:
      (необов'язково)
      Розкажіть нам, що сталось

      без комісії Межигірська, 13 — Здається офіс

      (г. Киев, Подольский район)

      28000 грн.

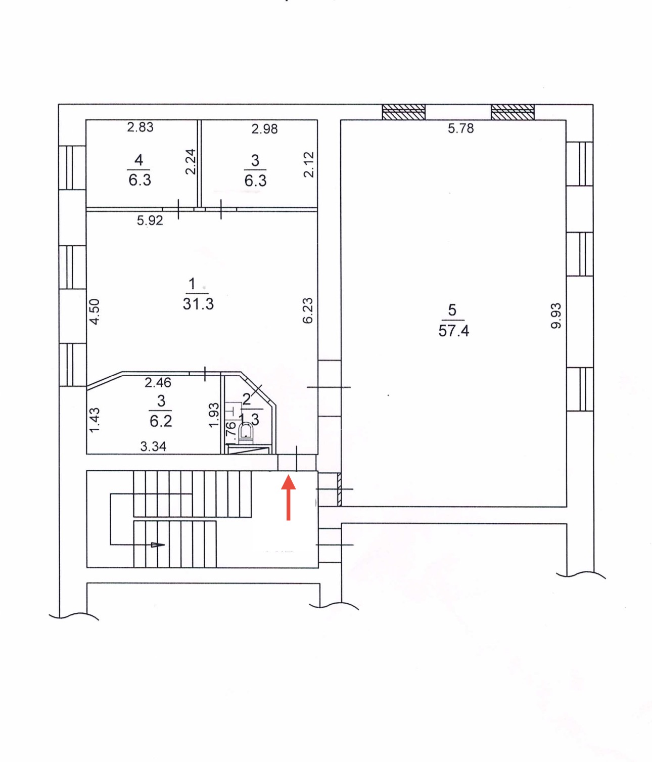
      Здається приміщення в історичному центрі Подолу
      - Адреса: Межигірська, 13
      - Площа: 108 м²
      - Поверх: 3/3, цегляний будинок

      Ідеальне рішення для офісу, студії, творчої майстерні або прибуткового орендного бізнесу- хостел !

      Планування:
      • Два зали
      • Два кабінети
      • Санвузол
      • Кімната-гардеробна
      Приміщення світле та просторе, з вікнами на вулицю та у затишний двір.

      Знаходиться у самому серці старого Подолу, в оточенні історичних пам’яток та сучасної інфраструктури. Поруч метро та зручна транспортна розв’язка.
      У кроковій доступності безліч кав’ярень, ресторанів, банків та інших зручностей.

      Канікули на ремонт обговорюються

      Ціна та деталі:
      Зв’яжіться з нами для отримання додаткової інформації та організації перегляду.

      Надіслати скаргу

      Закрити
      Поскаржитися на об'єкт «Межигірська, 13 (г. Киев, Подольский район)»
      Ваш коментар:(Необов'язково)
      Ваша скарга буде надіслана ріелтору, що розмістив об'єкт, а також адміністрації сайту АФНУ.
      Ваше ім'я:
      (Обов'язково)
      Ваш e-mail для відповіді:
      (Обов'язково)

      Коментарі