ул. Адмирала Головко — Продається торгівельний майданчик
(г. Кривой Рог, Терновской район)
25000 $
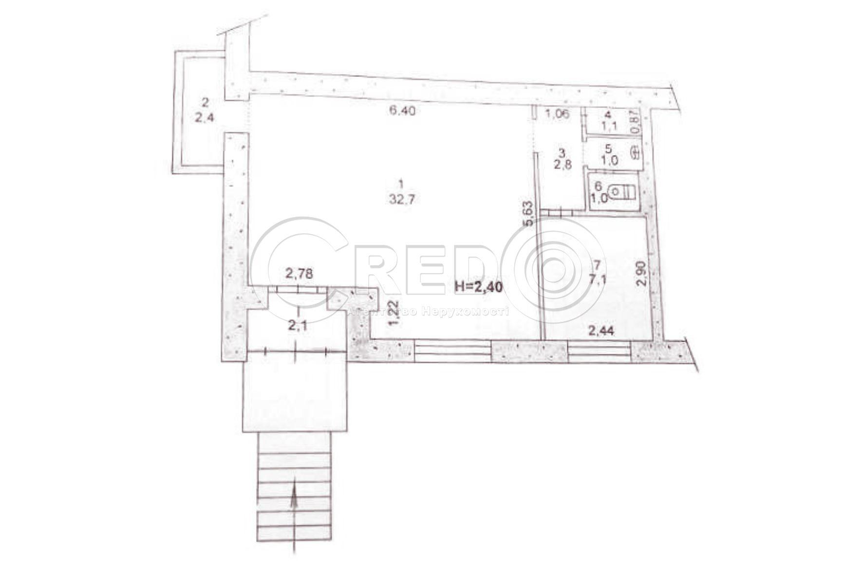
Загальна площа: 50 кв.м
Поверх: 1
К-ть поверхів: 9
Пропонуємо до продажу об'єкт нежитлового фонду розташований у Тернівському районі, вул.Героїв Маріуполя,58 (колишня вул.Адмірала Головка). мкрн. "Даманський" Раніше використовувалось як магазин, салон краси.
Про об'єкт: - загальна площа 50,2м.кв. - торгівельний зал 32,7м.кв. - кабінет 7,1 м.кв. - підсобні приміщення. - вхід окремо, сходовий майданчик. - вода, каналізація, опалення центральне. - електрика 10 кВт. - задовільний стан, не великі витрати на оновлення.
Локація: - зупинка громадського транспору в.Героїв Маріуполя. - поряд Криворізька Тернівська Гімназія. - Церква Петра і Февронії УПЦ.
Ціна продажу 25 000 $ За будь-якими питаннями за цією або схожими пропозиціями звертайтесь за номером телефону 067 982 17 19.