Вхід на сайт

Ел. пошта:
Пароль:

Реєстрація на сайті

Призвіще: Область:
Ім'я: Населений пункт:
    По батькові: Номер телефону:
    Ел. пошта: Компанія:
      Пароль: Посада:
      Повторіть пароль: Рік початку роботи:
      Фото:
      З правилами розміщення об'єктів погоджуюсь

      Забули пароль?

      Вкажіть ел. пошту — ми надішлемо Вам новий пароль для входу
      Ел. пошта:

      Проблема на сайті

      Закрити
      Ваш e-mail:
      (необов'язково)
      Розкажіть нам, що сталось

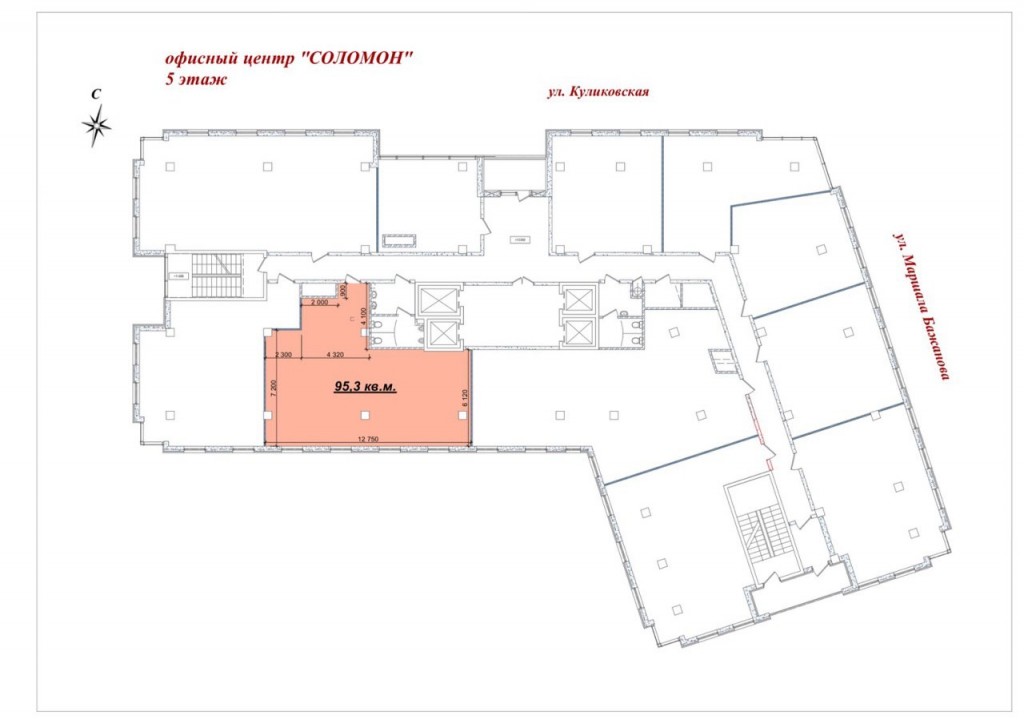
      ул. Маршала Бажанова, 28 — Продається офіс в новобудові

      (г. Харьков, Киевский район)

      1250 $ за кв.м.

      Загальна площа: 95 кв.м

      Кімнат: 1

      Поверх: 5

      К-ть поверхів: 10

      Продажа офиса в Бизнес Центре класса «А».
      Новый БЦ «Соломон» расположен в центре города в 5 минутах от м. Архитектора Бекетова.
      Международный бизнес-центр Соломон – красивое и респектабельное здание. Уникальное месторасположение и современный проект гарантируют престижность комплекса и оптимальные условия для ведения успешного бизнеса. Объект класса А со временем не теряет в цене.
      Офисный центр «Соломон» - это высокие технологии в формате современного делового центра. Презентабельный хол, скоростные лифты, подземный и наземный паркинг. Системы пожаротушения, общая принудительная вентиляция, высокоскоростной интернет.

      Надіслати скаргу

      Закрити
      Поскаржитися на об'єкт «ул. Маршала Бажанова, 28 (г. Харьков, Киевский район)»
      Ваш коментар:(Необов'язково)
      Ваша скарга буде надіслана ріелтору, що розмістив об'єкт, а також адміністрації сайту АФНУ.
      Ваше ім'я:
      (Обов'язково)
      Ваш e-mail для відповіді:
      (Обов'язково)

      Коментарі