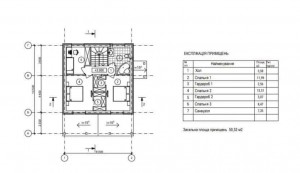
Продаж двоповерхового будинку в м.Гостомель, вул.Приозерна 62 Загальна площа: 110/45/31 м.кв Земельна ділянка: 5 соток кухня-студіо з панорманими вікнами, великою терасою 25м.кв. та з виходом у подвір’я з видом на ліс і парк, 4 кімнати, 2 с/в
Будівництво: стіни - газоблок 300 утеплення фасаду - 100 оздоблення фасаду - декоративна штукатурка та камінь, перекриття - з/б дах - металочерепиця. Внутрішне наповнення: сходи - бетонні сход вікна - металопластикові ламіновані вхідні двері - склопакет Коммунікації: електрика - введено в будинок 3ф 16Квт вода - скважина 35м каналізація - септик тепла підлога - 1 эт, 2 эт (с/в) Планування: 1 поверх: коридор, с/в, кімната, кухня-студія с панорамними вікнами та виходом на простору терасу з видом на ліс і парк. 2 поверх: 3 кімнати, с/в Територія: паркан - стовбці з облицювальної цегли в'їздна зона - відкатні ворота
Договір купівлі-продажу. Заходити на ремонт у вересні 2021р
Вартість 110 000 у.о. Всі додаткові питання по телефону: