• площадь 600 м2 • 2 этаж в новом офисном блоке БЦ «Тиняковка» • цена аренды 13,5 $/м.кв. + коммунальные и эксплуатационные услуги • подойдет под офис, коворкинг и другие виды деятельности
БЦ «Тиняковка» - это современный бизнес центр класса B, который отвечает всем требованиям для комфортного и продуктивного ведения бизнеса.
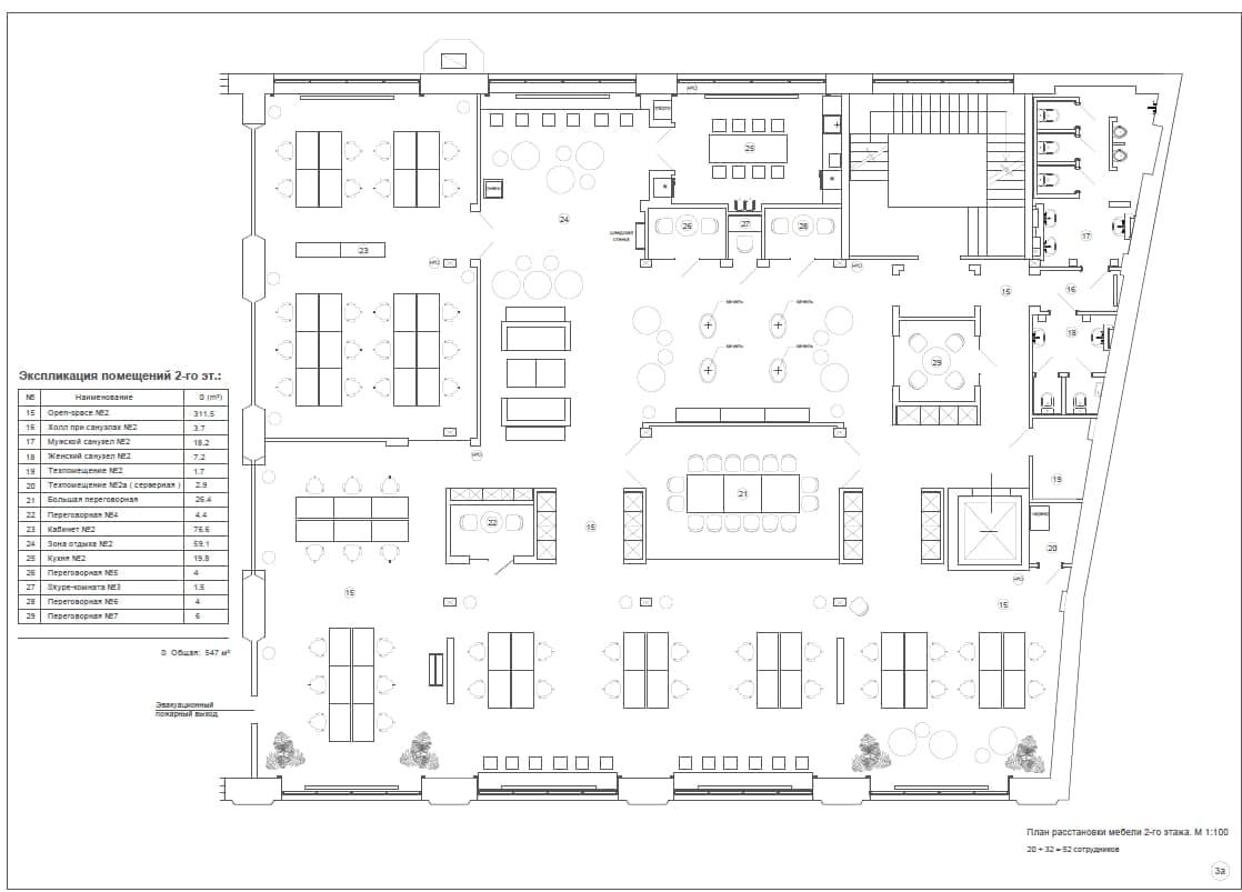
Характеристики: - соседние офисы занимают IT-компании; - площадь 600 м.кв.; - 52 рабочих места (кабинет на 20 мест и 32 места опен-спейс); - большая переговорная для 20 человек; - 5 переговорных комнат для 2-5 человек, есть вся мебель; - кухня укомплектована с техникой и мебелью; - 5 санузлов; - лифт; - высота потолков 3,5 м - круглосуточный доступ; - система контроля доступа; - панорамные окна; - инверторные кондиционеры и приточно-вытяжная вентиляция; - серверная и кладовая; - возможна комплектация мебелью для рабочих мест; - есть мебель в лануж-зонах (диваны, стойки и стулья вдоль окон,система хранения);
Удобная транспортная развязка: - Центральный рынок - 300 м (пешком 3-4 мин); - Пл.Конституции - 713 м (пешком 8 мин); - Исторический Музей - 670 м (пешком 8 мин).
Остались вопросы? Пишите Viber / Telegram или звоните + 38 (095) 769-73-33, мы с радостью Вам ответим. компания stepREALTY