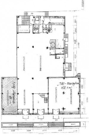
1. Отдельно стоящий 2х этажный торговый комплекс по ул. Джержинского в р-не магазина «Амстор». 1й этаж 987 м2, 2й этаж 987 м2. вход на 2й этаж отдельный. 34 сот в аренде. Пожарная и охранная сигнализации, автономное отопление. Возможность продажи поэтажно, продажа долевого участия . Стоимость 1го этажа 650 дол/м2; 2го 550 дол/м2. Есть автостоянка. На данный момент сдается в аренду, возможность продажи с арендаторами. Есть место под парковку. Стоимость комплекса 800 000дол.