без комісії
ул. Полтавский Шлях, 186 — Продається квартира в новобудові
(г. Харьков, Ленинский район)
920630 грн.
Загальна площа: 42.82 кв.м
Жила площа: 17 кв.м
Площа кухні: 15 кв.м
Кімнат: 1
Поверх: 9
К-ть поверхів: 9
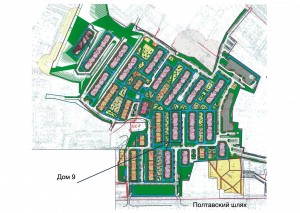
Без оплати агентських послуг за ціною забудовника продається 1-кімнатна квартира в новобудові ЖК «Казка», розташований по вул. Полтавський Шлях, 186, в 800 м., Ходьби від станції метро «Холодна Гора». Також в радіусі 2 км. від комплексу розташовані: школи, садки, супермаркети і парки. - Квартира розташована в будинку № 9 - здача будинку в 4 кварталі 2022 року. Площа квартири: Загальна. - 42.82 м²; Житлова - 17 м²; Кухня - 15 м². - КВАРТИРА ПОТРЕБУЄ КАПІТАЛЬНИЙ РЕМОНТ. КОМПЛЕКТАЦІЯ КВАРТИР: • встановлені перегородки як зазначено на плані; • металопластикові вікна (viknaland); • горизонтальна розводка опалення та радіатори опалення (є можливість поставити лічильник на тепло, регулятори на батареї і контролювати подачу тепла в квартиру індивідуально); • вхідні залізні двері; • лічильник на електрику; • підведені комунікації (холодна, гаряча вода); • каналізація; • заведено електрику; • зроблено зовнішнє утеплення стін (утеплювач пінополістирол 100 мм). - Буду радий Вас чути): Пн-Пт - 8: 00-20: 00. Сб-Нд - II: 00-20: 00 Святкові дні - вихідний.