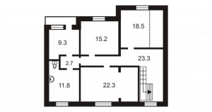
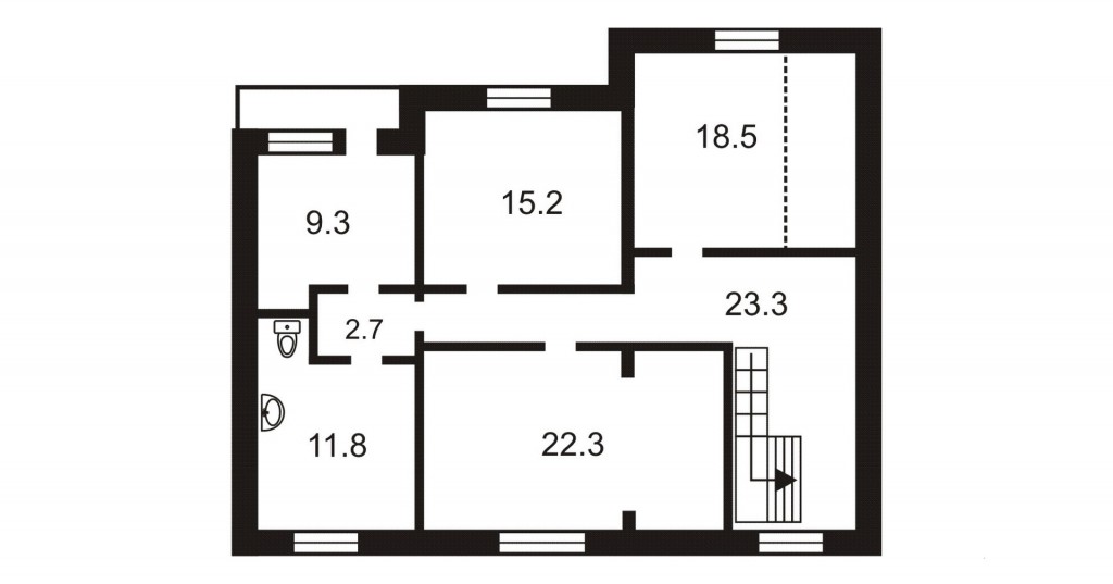
Продаж двохповерхового будинку в Київської області, в с. Торфʼяне. Загальна площа будинку - 192,3 кв.м. В будинку є: 4 спальні кімнати, вітальня, кухня, кабінет, комора, підвал, два с/у. На першому поверсі зроблен повністю ремонт, всі меблі та техніка залишаються.
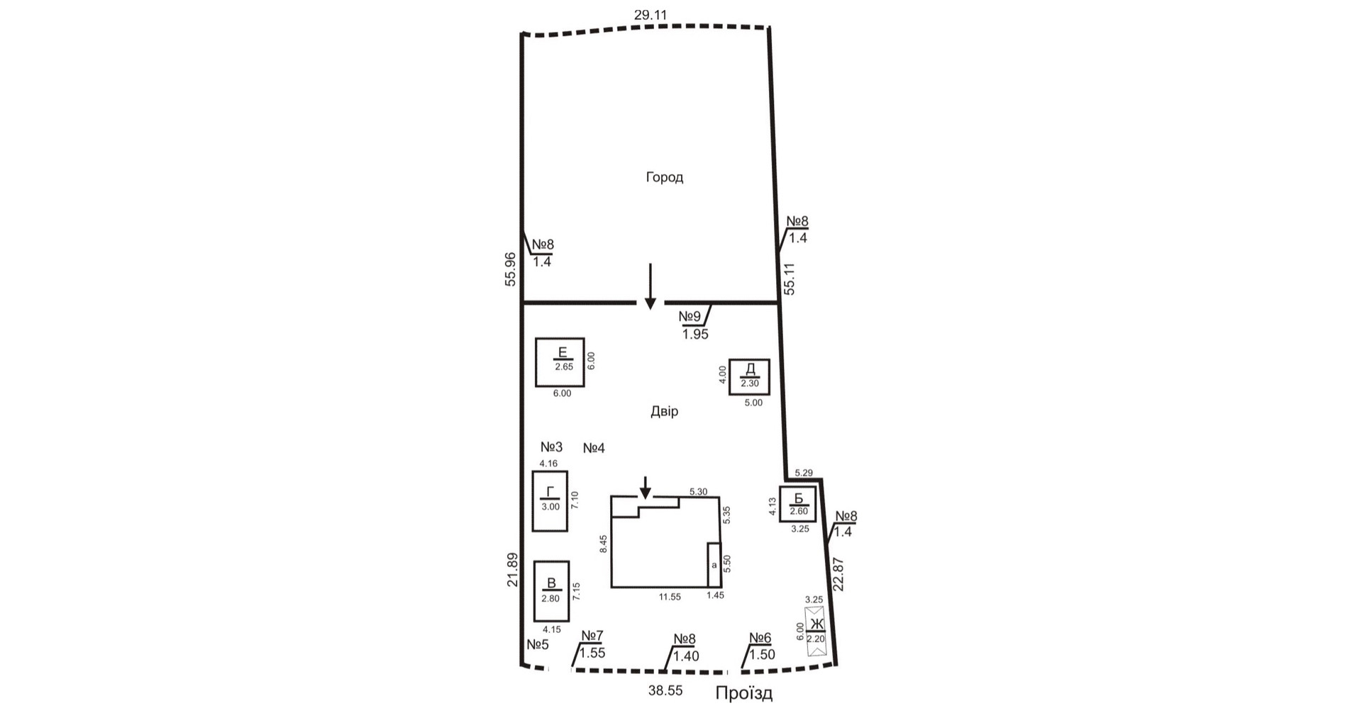
Ділянка площею - 0,328 га (32,8 сотки). Побудована окрема котельня з двома котлами (твердопаливний та електродний). На ділянці є свердловина 63 м, також є система очищення та фільтрації води, автономна каналізація (біо септик). Встановлено спутникове телебачення та Інтернет, є можливість підключення кабельного Інтернету.
На ділянці зроблен ландшафтний дизайн, посаджені рідкісні хвойні дерева, також є невеликий родючий сад. Поряд з будинком є великий ліс та озеро. Цей будинок – дивовижне місце для життя дружньої родини. Можливий продаж будинку за постановами.