Вхід на сайт

Ел. пошта:
Пароль:

Реєстрація на сайті

Призвіще: Область:
Ім'я: Населений пункт:
    По батькові: Номер телефону:
    Ел. пошта: Компанія:
      Пароль: Посада:
      Повторіть пароль: Рік початку роботи:
      Фото:
      З правилами розміщення об'єктів погоджуюсь

      Забули пароль?

      Вкажіть ел. пошту — ми надішлемо Вам новий пароль для входу
      Ел. пошта:

      Проблема на сайті

      Закрити
      Ваш e-mail:
      (необов'язково)
      Розкажіть нам, що сталось

      без комісії ул. Баленка — Продається квартира

      (г. Полтава, Киевский район)

      30000 $

      Загальна площа: 39 кв.м

      Жила площа: 20 кв.м

      Площа кухні: 8 кв.м

      Кімнат: 1

      Поверх: 3

      К-ть поверхів: 5

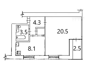
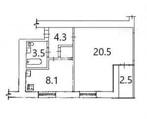
      Продаж 1 кімнатної квартири підвищеної комфортності розташованої на м-ні Браїлки, р-н вул. Баленка, 1

      Характеристика квартири:
      - загальна площа 39,9 м.кв;
      - кімната- 20,5 м.кв;
      - кухня – 8,1 м.кв;
      - лоджія засклена;
      - 3/5 цегляного будинку

      Комунікації:
      - централізовані;
      - лічильники на світло, газ, воду.

      Стан:
      - гарний жилий стан;

      Вартість квартири:
      - $30 000 на руки+ нотаріальне оформлення
      БЕЗ комісійних АН

      Надіслати скаргу

      Закрити
      Поскаржитися на об'єкт «ул. Баленка (г. Полтава, Киевский район)»
      Ваш коментар:(Необов'язково)
      Ваша скарга буде надіслана ріелтору, що розмістив об'єкт, а також адміністрації сайту АФНУ.
      Ваше ім'я:
      (Обов'язково)
      Ваш e-mail для відповіді:
      (Обов'язково)

      Вам также могут подойти

      Боровиковського (г. Полтава, Киевский район) - Продається квартира, 35000 $ - АФНУ

      Оновлено: 6 квітня

      Розміщено: 12 листопада 2024

      Продається квартира

      1 кімн., площа 43.8/22.9/10.7, поверх 10/11

      г. Полтава, Боровиковського

      35000 $

      Остапченко Александр Степанович

      соучредитель (Агентство недвижимости "Альянс риэлти" Полтава)

      Продаж 1 кімнатної квартири в новобудові на Огнівки по бульвару Боровиковського

      Характеристика квартири:
      - загальна площа 43, 8 м2;
      - житлова площа 22, 9 м2;
      - кухня 10, 7 м2;…

      Детальніше

      Боровиковського (г. Полтава, Киевский район) - Продається квартира, 35000 $ - АФНУ

      Оновлено: 6 квітня

      Розміщено: 12 листопада 2024

      Продається квартира

      1 кімн., площа 43.8/22.9/10.7, поверх 10/11

      г. Полтава, Боровиковського

      35000 $

      Остапченко Александр Степанович

      соучредитель (Агентство недвижимости "Альянс риэлти" Полтава)

      Продаж 1 кімнатної квартири в новобудові на Огнівки по бульвару Боровиковського

      Характеристика квартири:
      - загальна площа 43, 8 м2;
      - житлова площа 22, 9 м2;
      - кухня 10, 7 м2;…

      Детальніше

      ул. Алмазная (г. Полтава, Октябрьский район) - Продається квартира, 35000 $ - АФНУ

      Оновлено: 6 квітня

      Розміщено: 20 листопада 2025

      Продається квартира

      1 кімн., площа 40.1/26.2/6.1, поверх 1/5

      г. Полтава, ул. Алмазная

      35000 $

      Остапченко Александр Степанович

      соучредитель (Агентство недвижимости "Альянс риэлти" Полтава)

      Продаж 2-кімнатної квартири перепланованої в 1- кімнатну квартиру на м-ні Алмазний (р-н вул. Алмазна)
      Характеристика квартири:
      • Загальна площа — 40,1 м²
      • Кімната — 26,2 м²
      • Кухня —…

      Детальніше

      Коментарі